|
新築戸建
[価格]
2,490万円
|
||||
|---|---|---|---|---|
| 所在地 | 沿線/駅 バス徒歩 |
構造 間取 |
土地面積 建物面積 |
築年月 引渡時期 |
| 高崎市岩鼻町 | 高崎市/佐野、倉賀野周辺 |
木造 4LDK |
176.96m² 103.5m² |
2026/06 相談 |

| 物件番号 | 17552 | ||
|---|---|---|---|
| 交通 | 高崎市 佐野、倉賀野周辺
小学校区 岩鼻小学校 中学校区 矢中中学校 |
学区 | 岩鼻小学校 1,500m 矢中中学校 3,000m |
| 建ぺい率 | 60% | 容積率 | 200% |
| 地目 | 宅地 | 用途地域 | 第一種住居地域 |
| 間取詳細 | 1F:和6.5、LDK、2F:洋8、6、6 | 取引態様 | 仲介 |
| 土地権利 | 所有権 | 借地料 | - |
| 私道面積 | - | ||
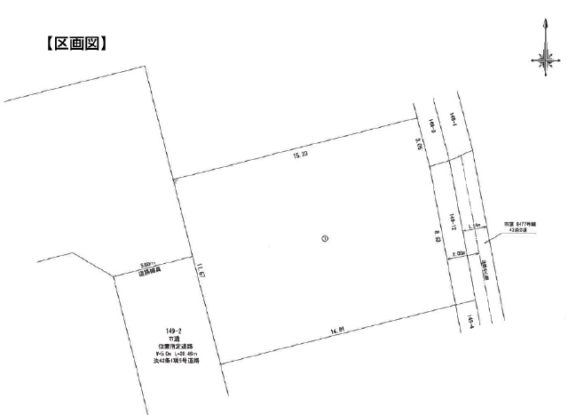
| 接道 | 西 5m(幅員) 公道 11.6m(接面) | セットバック | |
| 特色 | 仲介手数料無料・ローン取組料無料です!!、フラット35利用可能、日当たり良好、敷地内駐車場あり、公営水道、公共本下水、プロパンガス、ペアガラス、システムキッチン、浄水器、対面キッチン、浴室乾燥機、温水洗浄便座、洗面化粧台、シャンプードレッサー | ||
| 最寄駅 | 最寄駅 JR高崎線:北藤岡駅 徒歩22分 1,760m | ||
|
地図を右クリックでルート検索が可能です。
|