|
新築戸建
[価格]
3,790万円
|
||||
|---|---|---|---|---|
| 所在地 | 沿線/駅 バス徒歩 |
構造 間取 |
土地面積 建物面積 |
築年月 引渡時期 |
| 高崎市塚田町 | 高崎市/旧群馬町周辺 |
木造 3LDK |
263.88m² 105.58m² |
2026/02 相談 |

| 物件番号 | 17570 | ||
|---|---|---|---|
| 交通 | 高崎市 旧群馬町周辺
小学校区 国府小学校 中学校区 群馬中央中学校 |
学区 | 国府小学校 700m 群馬中央中学校 2,200m |
| 建ぺい率 | 70% | 容積率 | 200% |
| 地目 | 宅地 | 用途地域 | 無指定 |
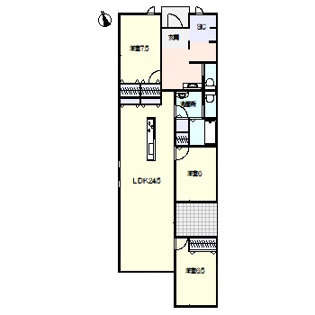
| 間取詳細 | 1F:洋7.5、6、6.5、LDK24.5 | 取引態様 | 仲介 |
| 土地権利 | 所有権 | 借地料 | - |
| 私道面積 | - | ||
| 接道 | 北 6m(幅員) 公道 | セットバック | |
| 特色 | 仲介手数料無料・ローン取組料無料です!!、フラット35利用可能、日当たり良好、敷地内駐車場あり、公営水道、浄化槽、プロパンガス、システムキッチン、対面キッチン、TVモニター付きインターホン、浴室乾燥機、温水洗浄便座、シャンプードレッサー | ||
| 最寄駅 | 最寄駅 JR高崎線:高崎駅 車25分 | ||
|
地図を右クリックでルート検索が可能です。
|